LIMERENCE
A New Era of Elegance and Exploration
Introducing Limerence – Alia Yachts’ latest 53-metre masterpiece that redefines what a superyacht can be. With the sleek lines of a luxury vessel and the soul of an adventure-ready explorer, Limerence blends indulgent guest accommodation with jaw-dropping toy-carrying capacity, including a helicopter and a Triton sub. Built for those who want it all – comfort, capability and a serious sense of fun – this is a yacht that doesn’t just push boundaries, it plays with them.

A treasure trove of toys
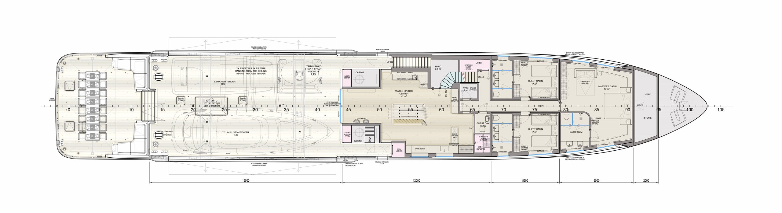
Limerence redefines the term ‘toy storage’ with an extraordinary inventory. From a custom-built 13m guest launch to a Triton submersible, the yacht carries an unrivalled fleet. There’s space for multiple tenders, jet skis, sailboats, inflatables, even foiling boards and a full dive shop — all expertly integrated without compromising comfort. This is not just a toy box; it’s a floating adventure hub.
A deck that does it all
At first glance, Limerence’s raised aft deck is a spectacular outdoor entertaining space — but it’s also a fully certified helideck, capable of accommodating an Airbus H145. With flush-mounted lighting and concealed fixtures, the area seamlessly transforms from aviation platform to party-ready terrace. Whether hosting a sunset cocktail soirée, a volleyball match or landing a helicopter, this space is the ultimate in multifunctional design.

Specifications
- Hull Type Displacement Hull
- Exterior Design Azure Yacht Design
- Interior Design Alia Yacht Builders
- Classification Lloyd’s Register / Cayman Islands Shipping Registry
- Material Steel Hull , Aluminium Super Structure
- Length Overall 52.50m
- Beam Length 8.60m
- Draft 2.60m
- Range at Economical Speed 4000nm
- Engines 2x Caterpillar – C 32 ACERT C rating 970 bkW @1800 rpm
- Generators 3x Caterpillar C4.4 86ekW
- Accommodation 8 guests + 12 crew
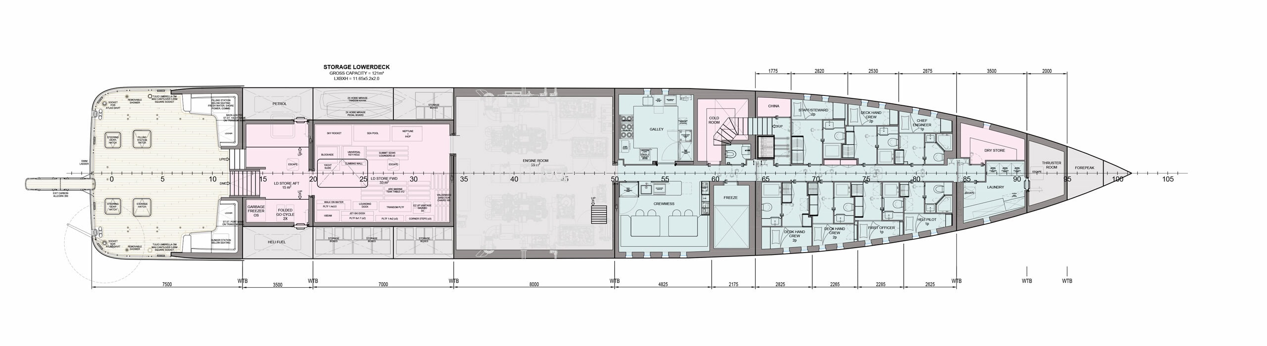
General Arrangements